Стоимость продукции:
от 460 000 руб.
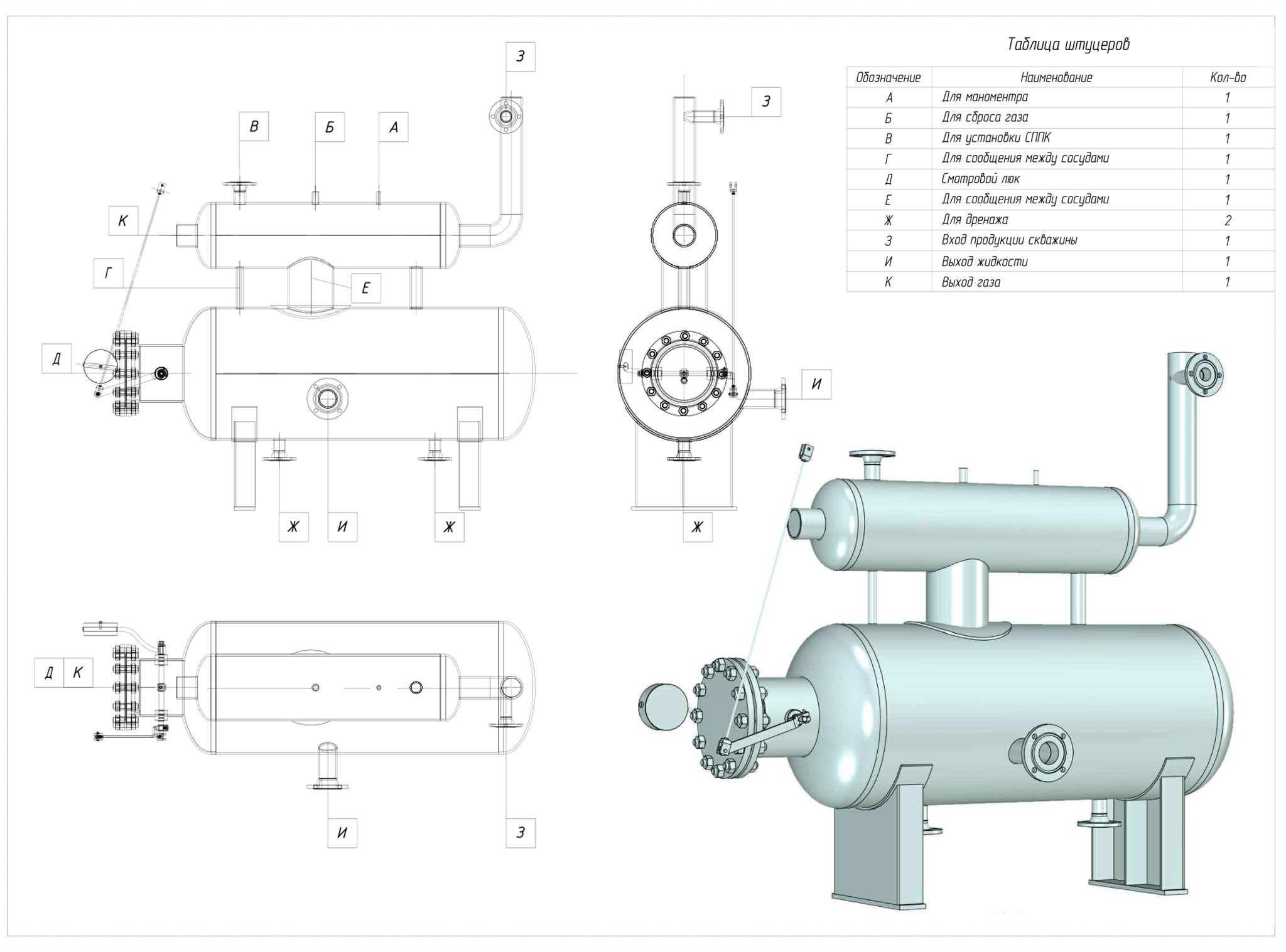
Сепарационная емкость АГЗУ предназначена для отделения попутного нефтяного газа от жидкости и дальнейшего их измерения в составе нефтегазовой смеси продукции нефтяных и газоконденсатных скважин.
Существуют две основные модификации сепарационных емкостей:
- объемом 0,79 м3 с производительностью по жидкости до 400 м3 в сутки;
- объемом 3,4 м3 с производительностью по жидкости до 1500 м3 в сутки;
- гидроциклонной головки, выполняющей (с помощью центробежных сил) основную функцию сепарации;
- верхней сепарационной части;
- нижней накопительной части;
- внутренних специальных устройств (перегородки, направляющие полки)
- поплавкового механизма;
- смотрового люка;
- дренажной системы;
Емкости могут быть изготовлены в правом или в левом исполнении, с внутренним или усиленным наружным покрытием.
